Наружная реклама
Реклама на радио
Реклама на телевидении
Реклама в интернете и печатных СМИ
Реклама в помещениях
Реклама на/в транспорте
Изготовление рекламы
в Черняховске
Фасад Медиа Групп – рекламно-производственная компания, оказывающая услуги по изготовлению щитов 3х6 (билбордов) в Черняховске и Калининградской области. Мы оказываем полный спектр услуг:
РПК «Фасад Медиа Групп» предлагает гибкие условия и выгодные цены изготовления щитов 3х6 (билбордов) в Черняховске и Калининградской области. Для получения коммерческого предложения по изготовлению и установке щитов 3х6 (билбордов) в Черняховске обращайтесь по телефону: 8 800 201-23-74 или оставьте заявку на сайте. Изготовление щитов 3х6 (билбордов) «под ключ» гарантируем!
Щиты 3х6 (билборды) пользуются большим спросом среди представителей бизнеса. Востребованность данного вида рекламной конструкции объясняется целым рядом факторов:
Щиты 3х6 (билборды) являются эффективным средством для рекламирования товаров и услуг с целью увеличения потока клиентов и повышения процента продаж. Многие клиенты нашего рекламного агентства заказывают изготовление щитов 3х6 (билбордов) на постоянной основе, добиваясь при этом высоких результатов в продвижении бренда компании, информировании населения о продаваемых товарах и оказываемых услугах.
Рекламно-производственная компания "Фасад Медиа Групп" занимается изготовлением щитов 3х6 (билбордов) «под ключ»:
Выбирая нашу компанию, вы получаете высокий уровень сервиса и разумные цены. Обращайтесь к нам. У нас выгодно!
ИЗГОТОВЛЕНИЕ, ДОСТАВКА И УСТАНОВКА ЩИТОВ 3Х6 (БИЛБОРДОВ) В ЧЕРНЯХОВСКЕ
.jpg)
Планируете изготовление щитов 3х6 (билбордов) в Черняховске? – обращайтесь по телефону: 8 800 201-23-74 или оставьте заявку на сайте. Изготовление щитов 3х6 (билбордов) «под ключ» гарантируем!
Что такое щиты 3х6 (билборды)?
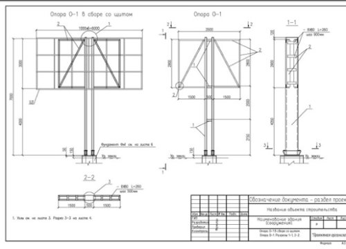
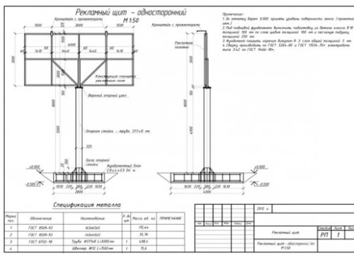
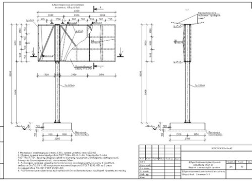
Наши клиенты часто задают вопрос: «Что такое щиты 3х6 (билборды)?». Отвечая на данный вопрос, специалисты нашей компании указывают, что под щитами 3х6 (билбордами) принято понимать конструкцию наружной рекламы 3х6 метров, представляющую собой прямоугольное поле с креплением на опоре, устанавливаемое вдоль трасс, улиц, шоссе, на оживленных перекрестках, напротив торговых центров и магазинов, а также иных объектах социальной инфраструктуры, с целью привлечения внимания потенциальных клиентов к рекламируемым товарам и услугам. Рекламный щит 3х6 м зачастую состоит из фанерной рамы, которая обита металлом, покрыта защитными составами и закреплена на устойчивой опоре.
Примеры щитов 3х6 (билбордов) приведены ниже:

Щиты 3х6 (билборды). Пример 1

Щиты 3х6 (билборды). Пример 2

Щиты 3х6 (билборды). Пример 3

Щиты 3х6 (билборды). Пример 4

Щиты 3х6 (билборды). Пример 5
Какие бывают виды щитов 3х6 (билбордов)?
Существует большое количество щитов 3х6 (билбордов). Все щиты 3х6 (билборды) могут быть объединены в различные группы по различным основаниям:
1) По количеству сторон щиты 3х6 (билборды) бывают:
Внимание! Сторона «А» — обращена к вам лицом в том случае, если рекламная конструкция находится справа. Сторона «Б» — обращена к вам лицом в том случае, если рекламная конструкция находится слева или посередине дороги.
2) По форме рекламного поля выделяют:
Низкая стоимость изготовления данной рекламной конструкции, а также легкость восприятия рекламного объявления привели к том, что большое распространение получили именно стандартные рекламные щиты 3x6 (билборды).
3) По размерам рекламного поля щиты 3х6 (билборды) бывают:
4) По конструкции щиты 3х6 (билборды) делятся на:
5) По наличию освещенности щиты 3х6 (билборды) бывают:
6) По наличию движения щиты 3х6 (билборды) делятся на:
Как видим, существует большое количество щитов 3х6 (билбордов) самого различного вида. В настоящее время особую популярность завоёвывают диджитал-конструкции, способные воспроизводить движение за счет светодиодных панелей.

Сколько стоит изготовление щитов 3х6 (билбордов) в Черняховске?
Стоимость изготовления щитов 3х6 (билбордов) в Черняховске не является фиксированной. Цены вариативны и зависят от различных факторов. Большое влияние на ценовую политику оказывают:
Дополнительно необходимо отметить, что качество материалов, сложность дизайн-проекта и объём заказа являются основными факторами, влияющими на стоимость изготовления щитов 3х6 (билбордов). Вариативность форматов данной рекламной конструкции позволяет рекламодателям даже с небольшим бюджетом изготавливать щиты 3х6 (билборды).
Можно заключить, что изготовление щитов 3х6 (билбордов) в Черняховске и Калининградской области стоит недорого. Денежные средства, вложенные в изготовление данного вида рекламной конструкции, окупаются быстро, а высокая эффективность щитов 3х6 (билбордов) способствует увеличению потока клиентов и повышению процента продаж.
Планируя изготовление щитов 3х6 (билбордов), рекламодатель, зачастую, во главу угла ставит именно финансовый аспект. Поэтому стоимость изготовления рекламы в Черняховске является важным вопросом. Для получения коммерческого предложения об условиях и ценах изготовления щитов 3х6 (билбордов) в Черняховске необходимо предоставить следующую информацию:
Предоставление указанной выше информации является необходимым условием для получения ценового предложения (прайса) по изготовлению щитов 3х6 (билбордов). После получения указанной информации наши менеджеры смогут подготовить коммерческое предложение с учетом ваших целей и задач.

Целевая аудитория рекламы в Черняховске
Для получения максимального эффекта от установки щитов 3х6 (билбордов) в Черняховске необходимо точно определить целевую аудиторию, на которую ориентирован рекламируемый бренд. Данный фактор, зачастую, является краеугольным, особенно для тех рекламодателей, у которых скромный рекламный бюджет. Для чего необходимо точно знать целевую аудиторию? Точечно воздействуя на заранее определенную аудиторию, можно достичь высокой эффективности при установке рекламной конструкции в том или ином месте что, в свою очередь, приведет к повышению покупательского спроса и увеличению продаж.
Возникает закономерный вопрос: «На кого ориентирована реклама в Черняховске?». Отвечая на данный вопрос, можно отметить, что реклама в Черняховске ориентирована на людей с высоким и средним уровнем дохода. Рекламная информация воздействует на людей среднего и старшего возраста, имеющих высшее и среднее образование, высокий и средний заработок, собственников бизнеса, и работников по найму, любящих путешествие, отдых, ведущих активный образ жизни, старающихся следовать моде в сфере гаджетов и компьютерной техники.

Услуги по изготовлению щитов 3х6 (билбордов) в Черняховске
Компания "Фасад Медиа Групп" изготавливает щиты 3х6 (билборды) в Черняховске на профессиональной основе. Мы оказываем следующий перечень услуг:
Как можно видеть, рекламно-производственная компания "Фасад Медиа Групп" оказывает полный перечень услуг по изготовлению щитов 3х6 (билбордов) в Черняховске. Благодаря большому опыту работы и профессионализму наших рабочих, мы качественно оказываем услуги, а работы всегда выполняем в полном объеме и в установленный срок.

Сроки изготовления щитов 3х6 (билбордов) в Черняховске
Срок изготовления билбордов является одним из важных факторов, поскольку чем быстрее билборд будет установлен, тем быстрее тысячи потенциальных покупателей смогут обратить внимание на рекламу. Зачастую, наши клиенты спрашивают: «Каков минимальный срок изготовления щитов 3х6 (билбордов) в Черняховске?». Отвечая на данный вопрос, можно отметить, что минимальный срок изготовления щитов 3х6 (билбордов) в Черняховске составляет 3 рабочих дня. Что касается максимального срока выполнения работ, то он рассчитывается индивидуально исходя из вида рекламной конструкции, срочности заказа, сезонности, а также наличия свободных трудовых ресурсов.
Изготовление щитов 3х6 (билбордов) можно разделить на несколько этапов:
Несмотря на то, что минимальный срок изготовления щитов 3х6 составляет 3 рабочих дня, в некоторых случаях срок изготовления данной конструкции может быть продолжительным. Для получения более подробной информации по данному вопросу, обращайтесь к специалистам нашей компании. Будем рады помочь.

Плюсы изготовления щитов 3х6 (билбордов) в Черняховске
Конструкции наружной рекламы в Черняховске пользуются спросом среди представителей бизнеса, поскольку являются эффективным и выгодным решением для увеличения потока клиентов и повышения процента продаж. Щиты 3х6 (билборды) сочетают в себе преимущества, которые делают их наиболее популярными среди всех средств привлечения внимания потенциальных клиентов или покупателей. Назовем некоторые плюсы щитов 3х6 (билбордов):
Востребованность наружной рекламы обусловлена тем, что установка конструкции наружной рекламы позволяет существенно увеличить продажи и привлечь новых покупателей и клиентов. Изготовление и установка рекламной конструкции позволяет собственнику бизнеса увеличить прибыль. Пожалуй, это самое главное, для чего нужна реклама.

Какова рекламная эффективность щитов 3х6 (билбордов) в Черняховске?
Щиты 3х6 (билборды) очень популярны и широко распространены в Черняховске и Калининградской области в качестве рекламных конструкций. Эффективность щитов 3х6 (билбордов) достигается за счет ряда факторов. Особенно заметное влияние оказывают:
Востребованность щитов 3х6 (билбордов) обусловлена тем, что они позволяют существенно увеличить продажи и привлечь новых покупателей и клиентов.

Способы оплаты работ по изготовлению щитов 3х6 (билбордов) в Черняховске
Рекламно-производственная компания «Фасад Медиа Групп» предлагает своим клиентам следующие способы оплаты работ по изготовлению и установке щитов 3х6 (билбордов):
Внимание! Мы работаем по 100% предоплате. После поступления денежных средств начинается процесс изготовления рекламы. Днем поступления оплаты считается день зачисления денежных средств на расчетный счет ООО «Фасад Медиа Групп».
| Вид конструкции | Высота, м. | Ширина, м. | Количество сторон | Способ показа | Изготовление | Доставка | Установка |
|---|
ПРЕИМУЩЕСТВА УСТАНОВКИ ЩИТОВ 3Х6 (БИЛБОРДОВ) В ЧЕРНЯХОВСКЕ

Широкая целевая аудитория
В городской среде установлено большое количество рекламных конструкций, которые используются рекламодателями в целях продвижения бренда компании, популяризации товаров и услуг, привлечения новых и удержания старых клиентов и покупателей. Каждый вид рекламы обладает своими отличительными особенностями, характеристиками и преимуществами. Важной особенностью любой рекламы является возможность и способность воздействовать на широкий круг людей, т.е. на большую целевую аудиторию. Вместе с тем, порой сложно добиться того, чтобы реклама работала на большую группу людей. Зачастую рекламное объявление воздействует только на потенциальных заказчиков и клиентов, не затрагиваю тех людей, которым данное рекламное предложение также может быть интересно. А это проблема, поскольку рекламодатель некоторую часть своих денег тратит впустую, что приводит к снижению эффективности рекламной кампании. Возникает вопрос: «Существует ли рекламная конструкция, с помощью которой можно привлечь внимание потенциальных покупателей?». На данный вопрос можно дать положительный ответ. Речь идет о щитах 3х6 (билбордах).
Щиты 3х6 (билборды) воздействуют на широкий круг людей, охватывая максимальное количество потенциальных покупателей, клиентов, посетителей. Можно смело заявить, что щиты 3х6 (билборды) охватывают всех горожан, проходящих или проезжающих мимо рекламной конструкции.
Воздействие на максимальное количество людей является несомненным достоинством щитов 3х6 (билбордов). Устанавливая щиты 3х6 (билборды), можно массово воздействовать на целевую аудиторию, повышая тем самым эффективность рекламы.
Синергетический эффект рекламы
Синергия (греч. συνεργία – сотрудничество, содействие, помощь, соучастие) – взаимодействие двух и более факторов, совместное действие которых приводит к усиливающемуся эффекту, который, в свою очередь, превосходит простую сумму действий каждого из указанных факторов.
В рекламной сфере синергия возможна при размещении объявлений на различных типах рекламных конструкций, демонстрации рекламных объявлений через различные каналы распространения информации (телевидение, радио, интернет). Синергия наружной рекламы заключается в том, что реклама, размещенная на щитах 3х6 (билбордах) отлично сочетается с рекламой на телевидении, радио, интернет или транспорте.
Эффект от синергетической рекламной кампании колоссален и позволяет значительно увеличить поток клиентов и, как следствие, повысить процент продаж. Вместе с тем, нужно оговориться, что реклама, размещенная на улицах города, отлично работает не только в купе с иными видами рекламы, но и самостоятельно. Многие клиенты нашего рекламного агентства используют только наружную рекламу для достижения целей рекламной кампании. Следовательно, наружная реклама может применяться сама по себе с большой эффективностью.
Используя возможности наружной рекламы и как основного, и как дополнительного источника коммуникации с потребителем, вы сможете значительно повысить узнаваемость вашего бренда, товара или оказываемой услуги. В качестве примера можно привести западный опыт: крупнейшие бренды размещают рекламу не только в СМИ, но и важное место в рекламном бюджете отводят на наружную рекламу. Как показывают исследования, благодаря рекламе на улицах города рост объема продаж в среднем составляет 16%, а в отдельных случаях колеблется от 17% до 19%. Можно сделать вывод, что реклама, установленная на улицах города, отлично зарекомендовала себя и как основной вид рекламы, и как вспомогательный для продвижения бренда, товара или услуги.
Высокая частота контактов с наружной рекламой
Реклама на улицах города является хорошо развитым сегментом отечественного рекламного рынка. Рекламодатели по достоинству оценили эффективность наружной рекламы. Многие клиенты нашего рекламного агентства используют щиты 3х6 (билборды) в качестве единственного и основного средства информирования населения о месте нахождения магазина, торгового центра или офиса. В чем причина популярности щитов 3х6 (билбордов) среди представителей отечественного бизнеса? Ответ кроется в частоте контактов потенциальных покупателей с рекламой.
Заходя в магазин или торговый центр, люди сталкиваются с рекламными конструкциями различных форматов. Частота контактов потенциальных клиентов с рекламой, размещенной на щитах 3х6 (билбордах), находится на очень высоком уровне. По статистике, с данной рекламной конструкцией, установленной на фасаде здания, люди могут контактировать до нескольких тысяч раз в сутки.
Высокая частота контактов является важным составляющим успеха любой рекламной кампании. Устанавливая щиты 3х6 (билборды) и размещая на них рекламу, рекламодатель обеспечивает массовый охват целевой аудитории и значительно повышает вероятность привлечь новых клиентов и увеличить процент продаж.
Приведем несколько цифр: с точки зрения запоминаемости, результаты исследования оказались ошеломительными: 20% опрошенных в деталях вспомнили щит 3х6 (билборд), который они видели последнее время, при этом больше половины – в течение последних трех дней. Причем, запомнилась не только реклама, размещенная на щитах 3х6 (билбордах), но и местоположение данной рекламной конструкции.
Быстрое достижение целей рекламной кампании
Планируя размещение рекламы, рекламодатели ставят перед собой различные цели. Так, целями рекламной кампании могут быть:
Каждая цель рекламной кампании требует решения определенных задач для ее достижения. Важной задачей, которую необходимо решить перед запуском любой рекламной кампании, является задача выбора вида рекламы, рекламной площадки или рекламной конструкции. Данный вопрос является крайне важным, поскольку от его решения зависит успех рекламной кампании и ее эффективность. Выбор рекламной площадки или конструкции зачастую вызывает затруднения. И действительно, как выбрать рекламный формат или конструкцию? В какой вид рекламы инвестировать денежные средства? Чего ожидать от различных видов рекламы? Отвечая на данные вопросы, необходимо отметить, что выбор конкретного вида рекламы лучше доверить профессионалам, которые знают все тонкости и нюансы. Однако, если говорить коротко, то рекламу нужно выбирать ту, которая сможет обеспечить быстрое достижение поставленных целей. Без сомнения, такой рекламной конструкцией являются щиты 3х6 (билборды).
Почему щиты 3х6 (билборды) обеспечивают быстрое достижение рекламных целей? Приведем несколько соображений по этому поводу:
Можно привести еще рад положений, благодаря которым щиты 3х6 (билборды) имеют приоритет в быстроте достижения рекламных целей. Однако главным доводом может быть то, что миллионы человек по всей стране ежегодно инвестируют большие средства в наружную рекламу, получая при этом надлежащий экономический эффект.
Низкие цены изготовления наружной рекламы
Как указывалось, выше, существуют различные виды рекламы, которые имеют популярность у представителей отечественного бизнеса. Одна реклама является более эффективной, другая менее. Однако существует один вид рекламы, который является крайне эффективным и менее затратным. Речь идет о щитах 3х6 (билбордах).
Реклама на улицах города относится к одним из самых эффективных способов продвижения товаров и услуг. Секрет высокой эффективности кроется, в том числе и в низких ценах производства и размещения рекламных конструкций.
Низкая стоимость производства щитов 3х6 (билбордов) выгодно отличает данный вид наружной рекламы от иных видов. Вместе с тем, цены на изготовление щитов 3х6 (билбордов) различны и варьируются в зависимости от:
Однако в пересчете на количество контактов потенциальных клиентов с вашей рекламной конструкцией стоимость изготовления щитов 3х6 (билбордов) не высока.
СОВЕТЫ ПО ИЗГОТОВЛЕНИЮ ЩИТОВ 3Х6 (БИЛБОРДОВ) В ЧЕРНЯХОВСКЕ
Определите цели и задачи щитов 3х6 (билбордов)
Планируя установку рекламной конструкции, рекламодатель надеется на успех и хороший эффект. Но нужно понимать, что эффективность рекламной конструкции зависит от многих факторов, а сама ее установка требует тщательной подготовки. Добиться желаемого успеха в рекламе можно только при наличии заранее подготовленной стратегии. Многие наши клиенты зачастую спрашивают, с чего начать планирование рекламной кампании? Мы отвечаем: с постановки цели и определения задач, которые необходимо решить, чтобы достичь желаемого результата.
Все цели рекламной кампании можно объединить в три большие группы:
Имиджевые цели позволяют обратить внимание потенциальных клиентов к бренду компании. Стимулирующие цели призывают купить товар или заказать услугу. Стабилизирующие цели предназначены для поддержания интереса покупателей к бренду, товару или услуге. Таким образом, рекламодателю предстоит определиться, какую цель он планирует достичь.
После того, как рекламодатель определился с целью рекламной кампании, ему предстоит решить круг задач, важными из которых являются:
Рекламную кампанию можно назвать успешной в том случае, если она представляет собой сочетание качественной рекламной конструкции и профессионального выбора средств и способов достижения поставленных целей.
Следовательно, перед тем, как приступать к реализации задуманных рекламных проектов, необходимо понять, ради чего затевается рекламная кампания, какова ее цель и какие задачи необходимо будет решить в процессе ее реализации? Задайте себе простой вопрос: что я хочу получить по завершению рекламной кампании? Ответом на него и будет ваша цель.
Исследование рынка
После того, как поставлены цели рекламной кампании, необходимо провести исследования рынка или маркетинговые исследования. Что нужно изучить?
Уточните целевую аудиторию
Как уже говорилось выше, важным этапом в проведении эффективной рекламной кампании является правильное определение целевой аудитории вашего товара или услуги. Что такое «целевая аудитория»? Под целевой аудиторией следует понимать группу людей, которые нуждаются или могут нуждаться в приобретении вашего товара или услуги. Конечно, круг таких людей может быть очень широк. Следовательно, чтобы его сузить, необходимо задать себе вопросы:
Получив ответы на данные вопросы, мы сможем составить примерный портрет человека, входящего в целевую аудиторию вашего товара или услуги. От правильного понимания целевой аудитории зависит количество мест установки рекламной конструкции. Допустив ошибку с целевой аудиторией, велик риск провести рекламную кампанию, не получив в итоге ожидаемого положительного результата. Если с вопросом определения целевой аудитории у вас возникают проблемы, вы можете обратиться в рекламное агентство «Фасад Медиа Групп». Наши специалисты смогут вам помочь.
Подберите необходимый вид рекламной конструкции
Эффективность рекламной кампании во многом определяется правильно выбранной рекламной конструкцией. Зачастую, для определения требуемого вида рекламной конструкции, заказчики руководствуются бюджетом. Вместе с тем, данная позиция хоть и логична, но не всегда верна. При выборе вида конструкции наружной рекламы необходимо руководствоваться тем товаром или услугой, которую вы предлагаете клиенту или покупателю. Вид рекламной конструкции должен давать возможность человеку хорошо рассмотреть товар, изучать его, получить исчерпывающую информацию о контактах, адресах фирмы, которая рекламируется. Если рекламируемый товар или услуга требуют большого формата, то лучше не экономить и использовать надлежащий формат. Поверьте, от этого будет больше пользы и эффекта.
В случае, если вы затрудняетесь с выбором формата рекламной конструкции, обратитесь к менеджерам нашего рекламного агентства. Мы будем рады помочь.
Что такое щиты 3х6 (билборды)?
Наши клиенты часто задают нашим менеджерам вопрос: «Что такое щиты 3х6 (билборды)?». Отвечая на данный вопрос, специалисты нашей компании указывают, что под щитами 3х6 (билбордами) принято понимать конструкцию наружной рекламы 3х6 метров, представляющую собой прямоугольное поле с креплением на опоре, устанавливаемое вдоль трасс, улиц, шоссе, на оживленных перекрестках, напротив торговых центров и магазинов, а также иных объектах социальной инфраструктуры, с целью привлечения внимания потенциальных клиентов к рекламируемым товарам и услугам. Рекламный щит 3х6 м зачастую состоит из фанерной рамы, которая обита металлом, покрыта защитными составами и закреплена на устойчивой опоре.
Примеры щитов 3х6 (билбордов) приведены ниже:

Щиты 3х6 (билборды). Пример 1

Щиты 3х6 (билборды). Пример 2

Щиты 3х6 (билборды). Пример 3

Щиты 3х6 (билборды). Пример 4

Щиты 3х6 (билборды). Пример 5
Какие бывают виды щитов 3х6 (билбордов)?
Существует большое количество щитов 3х6 (билбордов). Все щиты 3х6 (билборды) могут быть объединены в различные группы по различным основаниям:
1) По количеству сторон щиты 3х6 (билборды) бывают:
Внимание! Сторона «А» — обращена к вам лицом в том случае, если рекламная конструкция находится справа. Сторона «Б» — обращена к вам лицом в том случае, если рекламная конструкция находится слева или посередине дороги.
2) По форме рекламного поля выделяют:
Низкая стоимость изготовления данной рекламной конструкции, а также легкость восприятия рекламного объявления привели к том, что большое распространение получили именно стандартные рекламные щиты 3x6 (билборды).
3) По размерам рекламного поля щиты 3х6 (билборды) бывают:
4) По конструкции щиты 3х6 (билборды) делятся на:
5) По наличию освещенности щиты 3х6 (билборды) бывают:
6) По наличию движения щиты 3х6 (билборды) делятся на:
Как видим, существует большое количество щитов 3х6 (билбордов) самого различного вида. В настоящее время особую популярность завоёвывают диджитал-конструкции, способные воспроизводить движение за счет светодиодных панелей.
Для чего нужны щиты 3х6 (билборды)?
Потребность бизнеса в щитах 3х6 (билбордах) велика и обусловлена целым рядом факторов, способствующих популяризации данной рекламной конструкции на рекламном рынке. Возникает вопрос: каково назначение щитов 3х6 (билбордов)? Необходимо отметить, что щиты 3х6 (билборды) используются в нескольких целях, при этом главными являются:
1) щиты 3х6 (билборды) – элемент привлечения внимания;
2) щиты 3х6 (билборды) – часть имиджа магазина, офиса, торгового центра, салона красоты и т.д.;
3) щиты 3х6 (билборды) – помощь в конкуренции.
В первом случае, щиты 3х6 (билборды) используются, чтобы помочь потенциальным покупателям быстро найти магазин, офис, салон красоты, аптеку и т.д. Не секрет, что каждый предприниматель желает быть более заметным для потенциальных покупателей и клиентов. Данная потребность особенно значима в условиях, когда город пестрит неоновыми вывесками и рекламными конструкциями. Если не устанавливать щиты 3х6 (билборды), то покупатель может и не заметить магазин, офис или банк. Это может привести к потере клиентов и, как следствие, потере прибыли, что всегда негативно сказывается на эффективности бизнеса.
Во втором случае щиты 3х6 (билборды) могут использоваться как элемент имиджа, позволяющий сформировать положительный образ вашему бизнесу. Следовательно, щиты 3х6 (билборды) выступают в качестве брендовой рекламной конструкции. Рекламодатель может самостоятельно выбирать вид щитов 3х6 (билбордов), габариты, материал изготовления и форму. Это позволяет выделить офис или магазин среди аналогичных либо среди иных инфраструктурных объектов.
И наконец, щиты 3х6 (билборды) могут помочь в борьбе за клиентов и покупателей, т.е. могут использоваться как преимущество в конкурентной борьбе. Данное обстоятельство играет главную роль в условиях перенасыщения городской среды зданиями и сооружениями, магазинами, офисами, торговыми центрами и другими элементами городской инфраструктуры. Зачастую, в незнакомой городской среде покупателям нет разницы, в какой магазин или аптеку идти за товарами. Следовательно, бизнесмену необходимо выделить именно свой бизнес и привлечь, таким образом покупателей или клиентов в свой магазин или салон красоты. Для этого предприниматели зачастую используют именно щиты 3х6 (билборды), выполненные по индивидуальному эскизу, способные издалека обратить на себя внимание потенциальных клиентов и покупателей.
Из изложенного выше можно сделать вывод, что щиты 3х6 (билборды) являются незаменимой рекламной конструкцией, которая используется для привлечения внимания потенциальных покупателей к объекту инфраструктуры, рекламируемому товару, способствует популяризации бизнеса, что приводит к успешной продаже товаров и предложению услуг.

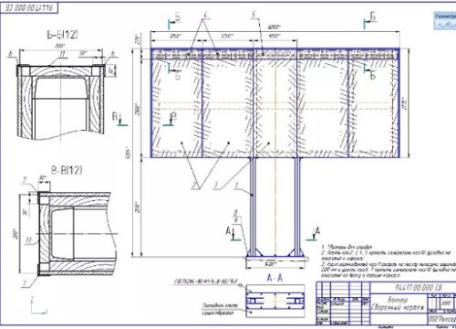
Что такое проектирование щитов 3х6 (билбордов)?
Под проектированием щитов 3х6 (билбордов) принято понимать процесс определения архитектуры, компонентов, интерфейсов и других характеристик щитов 3х6 (билбордов). Результатом проектирования щитов 3х6 (билбордов) является технический проект – целостная совокупность моделей, свойств или характеристик, описанных в форме, пригодной для реализации рекламной конструкции.
Проектирование щитов 3х6 (билбордов) представляет собой целенаправленную деятельность, которая обладает последовательностью процедур, ведущих к достижению эффективных решений. В настоящее время предложен ряд структур и алгоритмов проектирования щитов 3х6 (билбордов), совпадающих в основных чертах и различающихся только в содержании или названии отдельных этапов.
Методы проектирования щитов 3х6 (билбордов)
К методам проектирования щитов 3х6 (билбордов) относятся следующие:
1) Эвристические методы:
2) Экспериментальные методы:
3) Формализованные методы
Каждый из указанных методов должен использоваться в системе остальных подходов для того, чтобы процесс проектирования смог завершится в срок и с высокой степенью результативности.
Этапы проектирования щитов 3х6 (билбордов)
Выше указывалось, что проектирование щитов 3х6 (билбордов) – это процесс, состоящий из целого ряда логически последовательных действий, которые представляют собой систему и направлены на определенный результат, а именно: подготовка технического проекта щитов 3х6 (билбордов).
Процесс проектирования щитов 3х6 (билбордов) разбивается на несколько этапов. К основным этапам проектирования указанной рекламной конструкции относятся:
Процесс проектирования щитов 3х6 (билбордов) заканчивается получением разрешения на изготовление и установку рекламной конструкции. На данном этапе технический проект направляется в государственные органы, чтобы получить разрешение на изготовление и установку рекламной конструкции по заявленным характеристикам и на указанном в техническом проекте месте.
Как видим, процесс проектирования щитов 3х6 (билбордов) является многоэтапным и требует достаточной компетенции. Для того, чтобы данный процесс завершился с надлежащим эффектом, необходимо обращаться к специалистам. Только таким образом можно исключить ошибки и неточности в проектировании щитов 3х6 (билбордов).

Стоимость проектирования щитов 3х6 (билбордов)
Зачастую, клиенты нашей компании задают вопрос о стоимости проектирования щитов 3х6 (билбордов)? Отвечая на данный вопрос, можем привести следующие цифры:
Обращаем внимание, что указанные суммы не являются публичной офертой и рассчитываются в каждом случае индивидуально. Процесс проектирования щитов 3х6 (билбордов) является уникальным и не рутинным мероприятием, которое требует индивидуального подхода. Поэтому, для получения более точной информации о том, сколько стоит спроектировать щит 3х6 (билборд), необходимо обращаться к специалистам нашей компании. Будем рады сотрудничеству.
Уважаемые друзья! За изготовлением и установкой щитов 3х6 (билбордов) обращайтесь в компанию «Фасад Медиа Групп». Высокий уровень сервиса и низкие цены гарантируем. Мы все сделаем сами: дизайн и эскиз макета, подготовка документов, согласование и монтаж. Фотоотчёт предоставляем бесплатно и в 100% объеме.
Обращайтесь 88002012374@mail.ru или 8 800 201-23-74
Что такое согласование рекламной конструкции?
Согласование рекламы – это получение разрешения в компетентных органах государственной власти или органах местного самоуправления на установку и эксплуатацию рекламной конструкции согласно утвержденного технического проекта. Процесс согласования рекламной конструкции регламентирован различными законодательными актами, в том числе некоторыми положениями ФЗ «О рекламе».
Согласно ст. 3 данного Федерального закона реклама – информация, распространенная любым способом, в любой форме и с использованием любых средств, адресованная неопределенному кругу лиц и направленная на привлечение внимания к объекту рекламирования, формирование или поддержание интереса к нему и его продвижение на рынке. Следовательно, любая конструкция, которая относится к рекламной, требует получения разрешения на ее установку и эксплуатацию.
Для чего нужно согласовывать рекламу в органах государственной или муниципальной власти?
В ст.5 ФЗ «О рекламе» приведены общие требования к рекламе, среди которых особо отмечено, что реклама должна быть добросовестной и достоверной. Недобросовестная реклама и недостоверная реклама не допускаются. Органы государственной власти, выдавая разрешение на установку и эксплуатацию рекламной конструкции, должны удостовериться, что конструкция содержит добросовестную рекламу и достоверную информацию. Более того, особое внимание уделяется тому, чтобы реклама:
Таким образом, при выдаче разрешения на установку и эксплуатацию рекламы, органы государственной власти дают положительную оценку рекламной конструкции, соглашаясь с тем, что данная реклама не противоречит требования законодательных актов РФ.
Нужно ли согласовывать щиты 3х6 (билборды) в органах государственной власти?
Как указано в ст.9 ФЗ «О рекламе», установка и эксплуатация рекламной конструкции допускаются при наличии разрешения на установку и эксплуатацию рекламной конструкции (далее также – разрешение), выдаваемого на основании заявления собственника или иного указанного в частях 5, 6, 7 данной статьи законного владельца соответствующего недвижимого имущества либо владельца рекламной конструкции органом местного самоуправления муниципального района или органом местного самоуправления городского округа, на территориях которых предполагается осуществлять установку и эксплуатацию рекламной конструкции.
Таким образом, любая рекламная конструкция перед ее установкой и эксплуатацией на территории муниципального района или местного самоуправления, должна пройти процесс согласования в органах муниципальной власти или в органах государственной власти. Возникает закономерный вопрос: необходимо ли получать разрешение на установку и эксплуатацию щитов 3х6 (билбордов)? На данный вопрос необходимо ответить утвердительно, сказав, что перед установкой щитов 3х6 (билбордов) необходимо согласовать проектную документацию данной рекламной конструкции в органе муниципальной власти (администрации города), поскольку данная рекламная конструкция устанавливается на территории муниципального района или местного самоуправления.

Какова процедура согласования щитов 3х6 (билбордов) в гос. органах?
Зачастую клиенты нашей компании спрашивают: каким образом проходит процесс согласования щитов 3х6 (билбордов) в органах государственной власти? Отвечая на данный вопрос, необходимо отметить, чтобы получить разрешение на установку и эксплуатацию щитов 3х6 (билбордов), необходимо:
Как видим, процесс получения разрешения на установку и изготовление щитов 3х6 (билбордов) не является сложным. Вместе с тем, процесс подготовки документов лучше доверить профессионалам, чтобы получить положительное решение органа власти по вопросу согласования щитов 3х6 (билбордов).

Что делать в случае отказа госоргана в выдаче разрешения на установку и эксплуатацию щитов 3х6 (билбордов)?
Нередки случаи, когда органы государственной или муниципальной власти отказывают в выдаче разрешения на установку и эксплуатацию щитов 3х6 (билбордов). Возникает вопрос, что делать в этом случае? Наш ответ: необходимо уточнить все замечания, выяснить ошибки, которые были допущены при подготовке проектной документации, выяснить детально, в чем были допущены неточности, повлиявшие на отрицательный исход процесса получения разрешения на установку и эксплуатацию рекламной конструкции. Далее необходимо исправить все допущенные ошибки и подать документы повторно. При этом необходимо помнить, что повторная подача заявления на согласование щитов 3х6 (билбордов) требует повторной уплаты государственной пошлины. Это один из важных моментов, о котором иногда забывают. Вместе с тем, если не предоставить квитанцию об уплате госпошлины, вам могут отказать по формальным основаниям. Будьте внимательны!
Сколько стоит согласование (получение разрешения) щитов 3х6 (билбордов) в органах власти?
Приводим примерную стоимость согласования установки и эксплуатации щитов 3х6 (билбордов) в органах власти:
|
Вид услуги |
Сроки |
Стоимость |
|
Составление эскизного проекта |
от 5 рабочих дней |
от 15000 руб. |
|
Изготовление технического проекта |
от 3 рабочих дней |
от 18000 руб. |
|
Сбор необходимых документов |
от 1 рабочего дня |
от 5000 руб. |
|
Подача документов |
от 1 рабочего дня |
от 3000 руб. |
|
Повторная подача документов |
от 3 рабочих дней |
от 1500 руб. |
|
Уплата госпошлины |
от 1 рабочего дня |
от 2000 руб. |
*Стоимость не является публичной офертой
Уважаемые друзья! За изготовлением и установкой щитов 3х6 (билбордов) обращайтесь в компанию «Фасад Медиа Групп». Высокий уровень сервиса и низкие цены гарантируем. Мы все сделаем сами: дизайн и эскиз макета, подготовка документов, согласование и монтаж. Фотоотчёт предоставляем бесплатно и в 100% объеме.
Обращайтесь 88002012374@mail.ru или 8 800 201-23-74
Сколько стоит изготовление щитов 3х6 (билбордов) в Черняховске?
Стоимость изготовления щитов 3х6 (билбордов) в Черняховске не является фиксированной. Цены вариативны и зависят от различных факторов. Большое влияние на ценовую политику оказывают:
Дополнительно необходимо отметить, что качество материалов, сложность дизайн-проекта и объём заказа являются основными факторами, влияющими на стоимость изготовления щитов 3х6 (билбордов). Вариативность форматов данной рекламной конструкции позволяет рекламодателям даже с небольшим бюджетом изготавливать щиты 3х6 (билборды).
Можно заключить, что изготовление щитов 3х6 (билбордов) в Черняховске и Калининградской области стоит недорого. Денежные средства, вложенные в изготовление данного вида рекламной конструкции, окупаются быстро, а высокая эффективность щитов 3х6 (билбордов) способствует увеличению потока клиентов и повышению процента продаж.
Планируя изготовление щитов 3х6 (билбордов), рекламодатель, зачастую, во главу угла ставит именно финансовый аспект. Поэтому стоимость изготовления рекламы в Черняховске является важным вопросом. Для получения коммерческого предложения об условиях и ценах изготовления щитов 3х6 (билбордов) в Черняховске необходимо предоставить следующую информацию:
Предоставление указанной выше информации является необходимым условием для получения ценового предложения (прайса) по изготовлению щитов 3х6 (билбордов). После получения указанной информации наши менеджеры смогут подготовить коммерческое предложение с учетом ваших целей и задач.

Услуги по изготовлению щитов 3х6 (билбордов) в Черняховске
Компания «Фасад Медиа Групп» изготавливает щиты 3х6 (билборды) в Черняховске на профессиональной основе. Мы оказываем следующий перечень услуг:
Как можно видеть, рекламно-производственная компания "Фасад Медиа Групп" оказывает полный перечень услуг по изготовлению щитов 3х6 (билбордов) в Черняховске. Благодаря большому опыту работы и профессионализму наших рабочих, мы качественно оказываем услуги, а работы всегда выполняем в полном объеме и в установленный срок.

Сроки изготовления щитов 3х6 (билбордов) в Черняховске
Срок изготовления билбордов является одним из важных факторов, поскольку чем быстрее билборд будет установлен, тем быстрее тысячи потенциальных покупателей смогут обратить внимание на рекламу. Зачастую, наши клиенты спрашивают: «Каков минимальный срок изготовления щитов 3х6 (билбордов) в Черняховске?». Отвечая на данный вопрос, можно отметить, что минимальный срок изготовления щитов 3х6 (билбордов) в Черняховске составляет 3 рабочих дня. Что касается максимального срока выполнения работ, то он рассчитывается индивидуально исходя из вида рекламной конструкции, срочности заказа, сезонности, а также наличия свободных трудовых ресурсов.
Изготовление щитов 3х6 (билбордов) можно разделить на несколько этапов:
Несмотря на то, что минимальный срок изготовления щитов 3х6 составляет 3 рабочих дня, в некоторых случаях срок изготовления данной конструкции может быть продолжительным. Для получения более подробной информации по данному вопросу, обращайтесь к специалистам нашей компании. Будем рады помочь.
Уважаемые друзья! За изготовлением и установкой щитов 3х6 (билбордов) обращайтесь в компанию «Фасад Медиа Групп». Высокий уровень сервиса и низкие цены гарантируем. Мы все сделаем сами: дизайн и эскиз макета, подготовка документов, согласование и монтаж. Фотоотчёт предоставляем бесплатно и в 100% объеме.
Обращайтесь 88002012374@mail.ru или 8 800 201-23-74
Что такое установка щитов 3х6 (билбордов)?
Установка щитов 3х6 (билбордов) – это процесс доставки и сборки рекламной конструкции на заранее определенном месте с применением специализированных инструментов и техники. Установка щитов 3х6 (билбордов) также называется монтажом рекламной конструкции.
Сколько времени требуется на установку щитов 3х6 (билбордов)?
Сроки установки щитов 3х6 (билбордов) зависят от вида рекламной конструкции, сложности ее технического устройства, материалов изготовления, а также от количества составных элементов щитов 3х6 (билбордов). Как правило, сборка щитов 3х6 (билбордов) занимает от 2 до 7 рабочих дней.
Кто осуществляет сборку и установку щитов 3х6 (билбордов)?
Сборку и установку щитов 3х6 (билбордов) осуществляют специалисты ООО «Фасад Медиа Групп», которые обладают большим опытом работы. Каждый из наших рабочих, занятый в установке рекламной конструкции, прошел специальную подготовку и получил допуск от руководства к монтажным работам.
Гарантия после установки щитов 3х6 (билбордов)
Некоторые заказчики спрашивают, какие гарантии представляет наша компания после изготовления и установки щитов 3х6 (билбордов)? Отвечая на данный вопрос, необходимо отметить, что качество наших работ высокое. Мы используем качественные материалы при выполнении работ по изготовлению щитов 3х6 (билбордов). У нас собственное производство и квалифицированные рабочие, которые прошли обучение по изготовлению щитов 3х6 (билбордов), а также иных рекламных конструкций.
Изготовленные нами щиты 3х6 (билборды) рассчитаны более чем на 10-летнюю эксплуатацию. Гарантийный срок эксплуатации составляет 3 и более лет в зависимости от типа конструкции и материалов, применяемых при изготовлении щитов 3х6 (билбордов). Параметры гарантийных обязательств указываются в договоре, поэтому заказчик может быть уверен, что обязательства будут исполнены в полном объеме и в указанный в договоре срок.
Уважаемые друзья! За изготовлением и установкой щитов 3х6 (билбордов) обращайтесь в компанию «Фасад Медиа Групп». Высокий уровень сервиса и низкие цены гарантируем. Мы все сделаем сами: дизайн и эскиз макета, подготовка документов, согласование и монтаж. Фотоотчёт предоставляем бесплатно и в 100% объеме.
Обращайтесь 88002012374@mail.ru или 8 800 201-23-74
Рекламное агентство «Фасад Медиа Групп» предлагает гибкие условия изготовления и установки щитов 3х6 (билбордов) в Черняховске и Калининградской области, выгодные цены.
Примеры наших работ по изготовлению и установке щитов 3х6 (билбордов) представлены ниже:
![]() |
![]() |
![]() |
Уважаемые друзья! За изготовлением и установкой щитов 3х6 (билбордов) обращайтесь в компанию «Фасад Медиа Групп». Высокий уровень сервиса и низкие цены гарантируем. Мы все сделаем сами: дизайн и эскиз макета, подготовка документов, согласование и монтаж. Фотоотчёт предоставляем бесплатно и в 100% объеме.
Обращайтесь 88002012374@mail.ru или 8 800 201-23-74
Принимаем заявку
Позвоните или оставьте
заявку на сайте
Предлагаем услуги
Анализируем проблему
и предлагаем решение
Заключаем договор
Приходим к соглашению и подписываем документы
Оказываем услуги
Выполняем обязательства в полном объеме и в срок
Многие рекламные конструкции находятся в управлении нашего рекламного агентства. Это дает нам возможность устанавливать разумные цены без лишних комиссий и условий.
Наружная реклама
Реклама на радио
Реклама на телевидении
Реклама в интернете и печатных СМИ
Реклама на/в транспорте
Реклама в помещениях
Изготовление рекламы
Фасад Медиа Групп – это высокотехнологичное рекламное агентство, талантливый и креативный коллектив которого воплощает в жизнь сложные, смелые и интересные рекламные проекты.
На сайте используются файлы Cookie и Рекомендательные технологии. Продолжив работу с сайтом, Вы соглашаетесь с Политикой обработки персональных данных и правилами пользования сайтом